Loading...
22578 Branded Map
Exclusive
Ref:   22578

Wola Justowska, Przyszłości

Kraków
5,950,000 PLN Pricing details
411 m2
4
Hamilton May Logo Hamilton May

An elegant detached single-family house with an elevator and a unique view of Wola Justowska

Hamilton May presents a uniquely picturesque single-family home in developer's standard in Wola Justowska. This property combines elegant, modern architecture with stunning views and the comfort of living close to nature.

A unique home for unique people.

Property description

An elegant, modern single-family house with a total area of 411 m2 in developer standard, located on a unique plot with a panoramic view of the Wolski Forest.

A building with enormous arrangement potential located on an 8.4 ares plot.

The house consists of 3 floors guaranteeing comfortable living space:

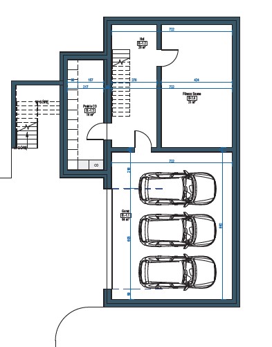
Floor 0 - 153 m2

  • garage for 3 cars
  • room for gym, fitness, sauna
  • utility room/laundry room

Floor I - 128 m2

  • hall
  • toilet
  • wardrobe
  • living room with kitchen and dining room
  • guest room/study
  • bathroom

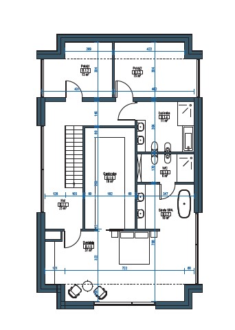
Floor II - 130 m2

  • corridor
  • room 1
  • room 2
  • master bedroom
  • wardrobe
  • spa zone
  • bathroom
  • Toilets

From the living room, which leads out to a large terrace and the garden, there is a beautiful view of the surrounding greenery of the Wolski Forest through the huge glass windows .

The building is equipped with an elevator that takes you to a 130 m2 roof terrace surrounded by a glass railing, which offers a breathtaking view of the surrounding area.

It is possible to arrange and build an outdoor swimming pool measuring 2.5 x 3.5 m at the front of the building with direct access from the terrace.

The property boasts a beautiful terraced garden with a slight slope to the south. The house is characterized by a modern, elegant design and a unique location.

Room height from 2.9 m to 3.2 m .

* the offer includes AI-generated visualizations for illustrative purposes.

Building

The house was built using modern technology.

  • Reinforced concrete foundations and basement walls sealed with system flanges,
  • Above-ground walls Porotherm 25 cm insulated with 20 cm polystyrene
  • Breathable interior plasters
  • Triple-glazed aluminum windows with increased thermal and acoustic protection
  • Ceramic brick partition walls
  • terrace, balconies - stoneware tiles
  • gable and flat roof insulated with polystyrene, EPDM drainage system, heated drain baskets,
  • elevator
  • recuperation
  • air conditioning
  • dual-function gas furnace - water underfloor heating
  • installation for a central vacuum cleaner
  • water treatment installation
  • monitoring and alarm installation

The property is surrounded by a gabion fence filled with natural stone and partially with steel panels.

The driveway is paved with graphite-colored concrete blocks.

Automatic garage door 6m wide.

Additional parking spaces in front of the building.

Location

The property is located in one of the most prestigious parts of Krakow , near the Chełmskie roundabout.

The location provides peace, quiet, closeness to nature and easy access to the city center.

The slight distance from the main road guarantees privacy and tranquility, while proximity to green spaces ensures a pleasant stay. The area is conducive to active recreation and privacy, making it an ideal place for discerning residents who value comfort and tranquility.

There is a supermarket and other shops and services nearby.

Pricing

The price of PLN 5,950,000 includes 3 underground parking spaces.

To view the property, please contact the Hamilton May office.

We cordially invite you to a viewing of this beautiful property.

Property details

Ref: 22578
City
Street
Size
411 m2
Bedrooms
4
Bathrooms
3
Distance to centre
7km
Number of floors
3
Plot size
837 m2
Recently updated
20-04-2026
Air conditioning
Balcony
Garden
WiFi internet
Lift
Storage space
Secure Private Parking

Sales Pricing

Ref: 22578
Price
5,950,000 PLN
Price/m2
14,477 PLN

The price of PLN 5,950,000 includes 3 underground parking spaces.

Hamilton May charges an agency fee for selling this property. The charge is a success fee and applicable on signing of the sales agreement.

Interested in this property?
Arrange viewing

We process your data in accordance with our Privacy policy

Property floor plan

An elegant detached single-family house with an elevator and a unique view of Wola Justowska - plan

Guide to Wola Justowska

Wola Justowska - prestigious single-family area

Discover villas and houses surrounded by the greenery of the Wolski forest and look at Krakow from the height of the Piłsudski mound.

Discover villas and houses surrounded by the greenery of the Wolski forest and look at Krakow from the height of the Piłsudski mound.

You might also be interested in:

Accept cookies

Thank you for visiting our website. Your privacy is of utmost importance to us, and data security is our priority. We use cookies to customize content to individual preferences and provide higher-quality services. Please consent to the use of cookies and familiarize yourself with our privacy policy.