Loading...
23148 Branded Map
New offer
Ref:   23148

Kleczków, Czesława Miłosza

Wrocław
586,812 PLN Pricing details
35 m2
1
Hamilton May Logo Hamilton May

Two-room apartment, designed to be divisible into two micro-apartmets

We are pleased to present a functional two-room apartment on the 1st floor. The potential buyer is choosing:

  • A thoughtfully designed space in a compact, two-room layout,
  • A symmetrically planned apartment with two utility shafts, ideal layout for division into two independent micro-apartments, perfect for rental investment,
  • A balcony with direct access from the living room and a western exposure,
  • A location within close reach of the city centre, guaranteeing peace and quiet in intimate, green surroundings.

Property description

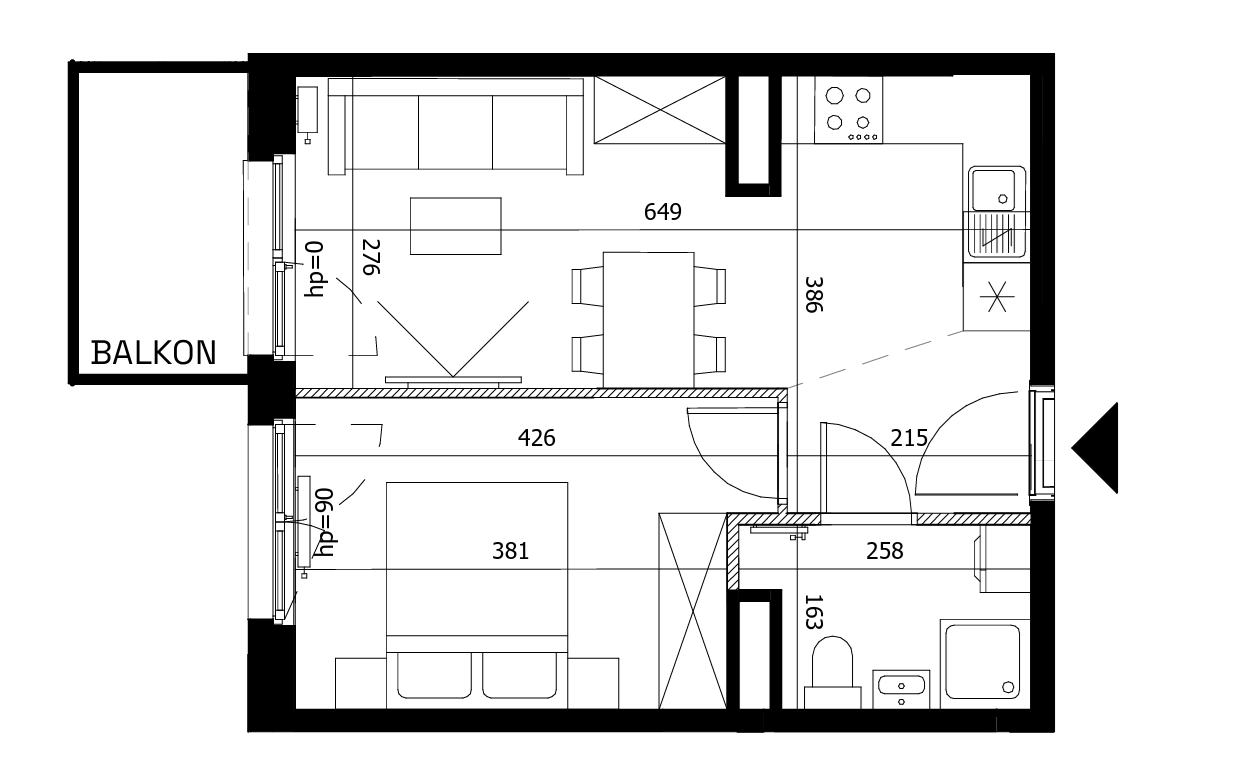
Upon entering the apartment, we find ourselves in a hallway with direct access to every room in the apartment (excluding balcony).

The heart of the apartment is a spacious living room combined with a kitchen area, forming a coherent and functional daytime space.

Directly from the living room, you can access the balcony with a western exposure of over 4 m², making it a perfect spot for a morning coffee or a moment of relaxation in the fresh air.

The independent room of nearly 11 m² provides a comfortable private zone with plentiful natural light, equally suited as a bedroom or a functional study.

At your disposal is also a bathroom, ensuring comfort in everyday use.

The apartment has been designed with a potential division into two smaller micro-apartments in mind. Two separate ventilation shafts have been installed to ensure adequate airflow in the event of the property being divided along the horizontal axis of the floor plan.

Additionally, a parking space and a storage unit are available for purchase.

Building

This project in the Kleczków district of Wrocław offers, among others:

Direct proximity to the Odra riverside boulevards and green spaces, inviting residents to daily walks, jogging and outdoor activities, right on their doorstep.

A publicly accessible recreational park of over 7,000 m², being created directly adjacent to the development, will provide a green retreat for residents and the wider neighbourhood, a place to unwind from the urban hustle without leaving the district.

Service premises, cafés and shops located on the ground floors of the buildings, providing a full range of retail and service amenities just a few steps from the front door.

A thoughtfully designed cycling infrastructure with ample bike storage and direct access to Wrocław's extensive cycling network, a feature that will certainly appeal to those who value an active and eco-friendly lifestyle.

A high architectural standard confirmed by an environmental quality certificate, guaranteeing that the development has been designed and delivered in accordance with the highest sustainable construction standards.

Location

The investment is located in the Kleczków district of Wrocław, dynamically developing part of the city with excellent infrastructure.

The location offers close proximity to the Odra riverside boulevards and green spaces, encouraging daily walks and active leisure by the river.

The historic Market Square of Wrocław is just a 10-minute drive away, while the nearest tram stop is only a few minutes' walk, providing effortless access to every part of the city. The Wrocław Nadodrze railway station is also nearby, offering convenient connections to otherdistricts and the wider agglomeration.

A full range of retail and service amenities, cafés and restaurants are available within a short walk, completing the comfort of everyday life in this part of Wrocław.

Pricing

Price 586,812 PLN + optional underground parking place (49,000 PLN ) + optional storage space (40,000 PLN )

This exceptional two-room apartment with a balcony is an offer for those who appreciate comfort and functionality in a green setting with an excellent location, as well as for those seeking an opportunity to invest their capital. A thoughtfully designed layout makes this property an ideal choice for both discerning residents and potential investors.

Should you have any questions, please do not hesitate to contact Hamilton May.

Property details

Ref: 23148
City
Development
Size
35 m2
Bedrooms
1
Bathrooms
1
Distance to centre
2km
Level
1
Admin fee
420 PLN
Number of floors
5
Recently updated
22-04-2026
Balcony
Cable TV
WiFi internet
Lift
Storage space
Secure Private Parking

Sales Pricing

Ref: 23148
Price
586,812 PLN
Price/m2
16,999 PLN

Price 586,812 PLN + optional underground parking place (49,000 PLN ) + optional storage space (40,000 PLN )

Hamilton May charges an agency fee for selling this property. The charge is a success fee and applicable on signing of the sales agreement.

Interested in this property?
Arrange viewing

We process your data in accordance with our Privacy policy

Property floor plan

Two-room apartment, designed to be divisible into two micro-apartmets - plan

Nowe Promenady

City: Wrocław Street: Czesława Miłosza Region: Psie Pole Subregion: Kleczków Level: 7 Status: construction Number of units: 389 Price on application Rental price from: null Avg. rental price/m2: null
City: Wrocław Street: Czesława Miłosza Region: Psie Pole Subregion: Kleczków Level: 7 Status: construction Number of units: 389 Price on application Rental price from: null Avg. rental price/m2: null

Nowe Promenady is a residential development proving that modern, comfortable living close to nature is possible right in the heart of Wrocław. Located at the junction of Jana Czochralskiego and Czesława Miłosza streets, just a few minutes' walk from the Market Square and the Odra riverside boulevards, Nowe P...

Accept cookies

Thank you for visiting our website. Your privacy is of utmost importance to us, and data security is our priority. We use cookies to customize content to individual preferences and provide higher-quality services. Please consent to the use of cookies and familiarize yourself with our privacy policy.